Qwik Jon® Premier là hệ thống bơm thoát nước thải ngược lắp đặt trong phòng tắm, nhà vệ sinh dân dụng và thương mại nhẹ. Máy bơm có cánh nghiền tích hợp lý tưởng khi tìm kiếm một giải pháp thoát nước nhanh chóng, gọn gàng mà không cần phá vỡ sàn bê tông và giúp lắp đặt phòng tắm, nhà vệ sinh ở bất kỳ đâu.
Tính năng và Lợi Ích
Ứng dụng: Hộ gia đình/Cơ sở kinh doanh/Thương mại nhẹ
Chất thải có thể thoát: Giấy vệ sinh, chất thải hữu cơ và các vật dụng vệ sinh
Lắp đặt nhà vệ sinh hay phòng tắm hoàn chỉnh mà không cần phá sàn bê tông
Động cơ loại dầu, vỏ bằng gang có công dụng tản nhiệt hiệu quả, giúp tăng tuổi thọ hoạt động của động cơ
Thiết kế cánh quạt xoáy không gây tắc nghẽn giảm thiểu khả năng tắc nghẽn trong quá trình nâng và thoát nước
Dao cắt bằng thép không gỉ SUS440C với Công nghệ cắt Tri-Slice® - ba kênh cắt độc lập cung cấp hơn 200,000 lần cắt mỗi phút
Cấu trúc nắp trên kiểu khóa, dễ tháo rời và lắp ráp, bảo trì đơn giản
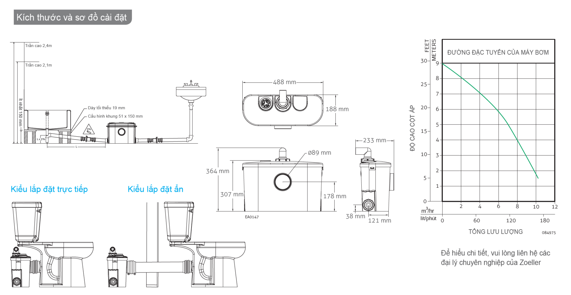
Sử dụng Bộ mở rộng cho các ứng dụng âm tường hoặc sau tường PN 10-3050
Thông số kỹ thuật sản phẩm
Thiết bị kết nối: Bồn cầu, bồn tiểu, chậu rửa, bồn tắm, vòi hoa sen,…